









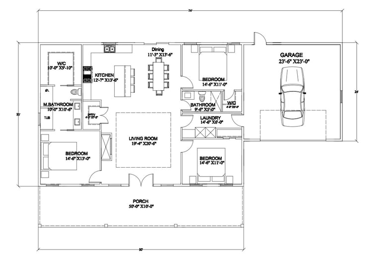
The Lexington Plan
Details
3 Bedrooms
2 Bathrooms
1,750 SQ FT Conditioned
540 SQ FT Front Porch
576 SQ FT Garage
$192,340 Wood Frame Kit Build
$215,420 Cold Form Steel Frame Kit Build
Engineering
Plumbing
Exterior Framing
Interior Framing
Siding
26 Gauge Standing Seam Roofing
Zip System Sheathing
Concrete
Window/Door Install
(customer provides windows, doors, and plumbing fixtures for us to install)


