









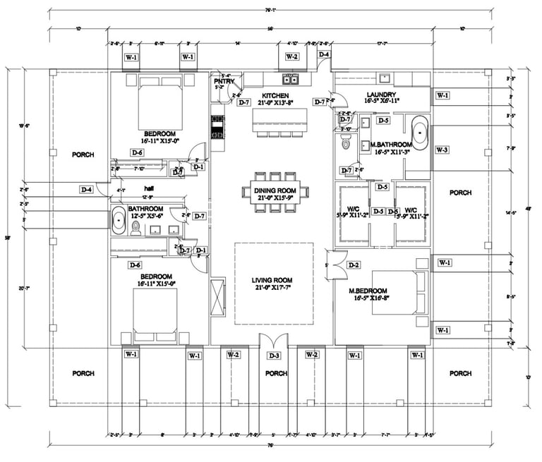
The Elberton Plan
Details
3 Bedrooms
2 Bathrooms
2,688 SQ FT Conditioned
1,723 SQ FT Porches
$311,700 Wood Frame Kit Build
$347,195 Cold Form Steel Frame Kit Build
Design
Site Specific Engineering
Plumbing
Exterior Framing
Interior Framing
Siding
26 Gauge Standing Seam Roofing
Zip System Sheathing
Concrete
Window/Door Install
(customer provides windows, doors, and plumbing fixtures for us to install)


