









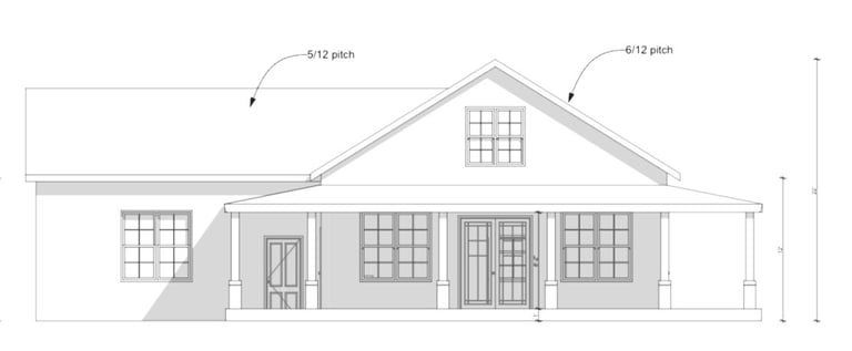
The Augusta Plan
Details
3 Bedrooms
2 Bathrooms
1,470 SQ FT Conditioned
773 SQ FT Wrap Porch
511 SQ FT Garage
$182,495 Wood Frame Kit Build
$203,615 Cold Form Steel Frame Kit Build
Design
Site Specific Engineering
Plumbing
Exterior Framing
Interior Framing
Siding
26 Gauge Standing Seam Roofing
Zip System Sheathing
Concrete
Window/Door Install
(customer provides windows, doors, and plumbing fixtures for us to install)


